When tasked to design a mixed-use public space for both a market hall and an art gallery that features both Palladian and modern work, alongside a private Palladian research centre that repairs the "dead" fourth Piazza Blade. 
 I chose to restore the site grade by creating an internal courtyard that accesses the three surrounding piazzas and shifting the Signori-facing facade alongside the natural axis provided with the columns. I was also heavily inspired by the ruins found underneath our neighboring Palladian Basilica when shaping the footprint of the buildings and courtyard. As for buildings, I have three individual ground-floor buildings that connect on the second floor with a step in height. 

initial footprint

Exterior Perspective From Biade
Exterior Perspective From Biade
Interior Daylight Perspective
Interior Daylight Perspective
Courtyard Perspective
Courtyard Perspective
Section & Courtyard Elevation
Section & Courtyard Elevation
Signori Elevation
Signori Elevation
Erbe Elevation
Erbe Elevation
Palladian Gallery Perspective
Palladian Gallery Perspective
Research Center Perspective
Research Center Perspective
Site Section
Site Section
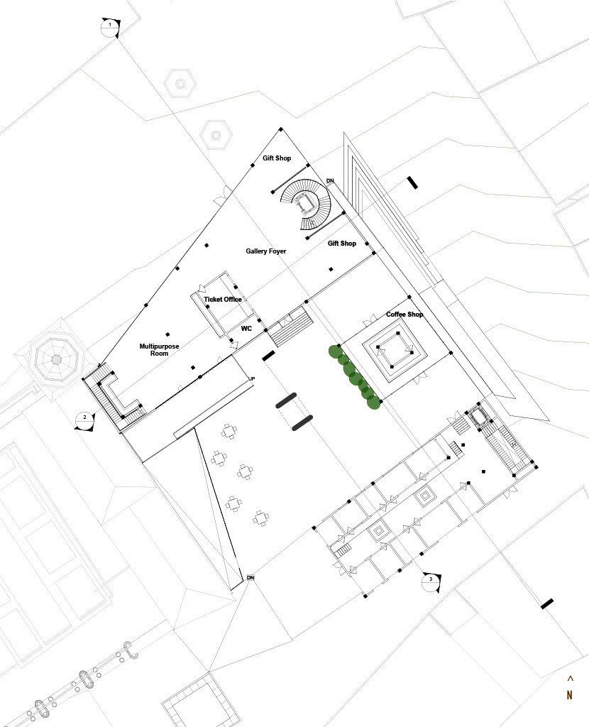
The Site Plan features three building typologies: an art gallery foyer, coffee shop, and market hall on the level below. The interior courtyard faces Roman ruins and features a small balcony outside the multi-purpose community room with an ADA ramp to the courtyard level. Along Piazza Biade, a staircase is designed to go up and down while connecting to another ADA ramp that goes down the piazza to the bottom market hall level. Piazza Erbe has a ramp that goes to the interior courtyard level and has the main entrance to the market hall.  
Site Response & Connection Diagram
Site Response & Connection Diagram
Program Diagram
Program Diagram
Bay Study Wall Section
Bay Study Wall Section
The main issue on our site was the Biade "dead" corner. By angling my site footprint as such and focusing on accessibility, I created this working ramp/staircase that perfectly connects the dead corner to the new building. I also wanted to open up the space, so by leaving three individual buildings on the ground floor at separate piazza heights, the interior courtyard is accessible from all directions. The site was an active area used at all times of the day, so it was tricky to imagine a new building in the space, but since we walked through the piazzas almost every day, we became familiar with the space and what was needed to elevate the environment. That sense of connection was required to connect the three piazzas.

You may also like

Back to Top