How do you define work? - and - How do you define living?

The purpose of this studio course was to design a compound of six live-work housing units that respond to their environment in a way that rethinks the relationship between "living" and "working." Interrogating the missing middle-class housing, this was the first time looking into zoning maps and parcel maps to understand the code requirements and site context that would impact the "non-defined" live-work housing typology. 

This project is located on a corner lot in the neighborhood of Georgetown, Seattle, Washington. According to the city zoning code of RC, the floor area ratio is 1:1, with a height limit of 22 feet, and requires six parking spots. 
With the guidance of the parti above, the goal statements derived for this project are as follows...
1. Foster community
2. Maintain outdoor space
3. Public to Public/Private to Private
4. Double Facades 
model at 1":1/8
1st Floor Plan at 1/4" scale
Each unit is designed for a different user group, with two unit sizes, 1,200 sqft and 1,600 sqft
2nd Floor Plan at 1/4" scale
Residential Spaces above provide each unit with a private balcony thanks to a mezzanine level at the stair landing. 1,200 sqft units feature one bedroom and one bathroom, while the 1,600 sqft units have two bedrooms and two bathrooms.  
Eddy St
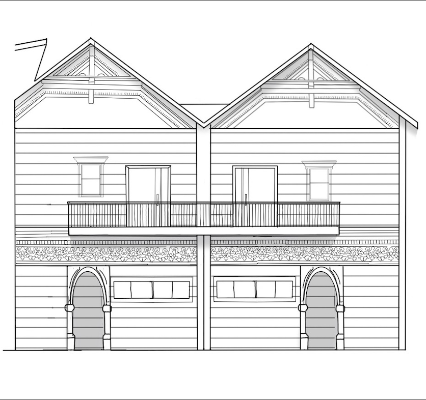
Street Elevation Facade Detailing from Public Facing Streets                                                                                          Corson Ave
Private Interior Courtyard Elevation Facade Detailing

Programming required each unit to have access to a private outdoor space. Due to the decision to have connecting units, the solution for focusing on the goal statement of private spaces in private areas was to step the interior facades and add a mezzanine level at every other unit's stair landing. This allowed both interaction between balconies, but also provided separation rather than one connected balcony level across the entire facade, as seen on the Eddy St balconies. Due to the Eddy St housing the larger units, the difference in balcony type felt more intentional, and a partition wall exists to draw upon the stepping of the Corson Ave facade. 
Latitudinal Section 1/4" Scale
Longitudinal Section 1/4" Scale
highlights balcony separation

You may also like

Back to Top